8-Familienhaus Neuenhagen
Neubau eines Mehrfamilienhauses mit acht Wohneinheiten. Die Architektur folgt einer klaren, wirtschaftlichen Ordnung mit ausgewogener Lichtführung und zurückhaltender Materialität. Ziel war die Schaffung langlebiger, alltagstauglicher Wohnungen mit hoher räumlicher Qualität.

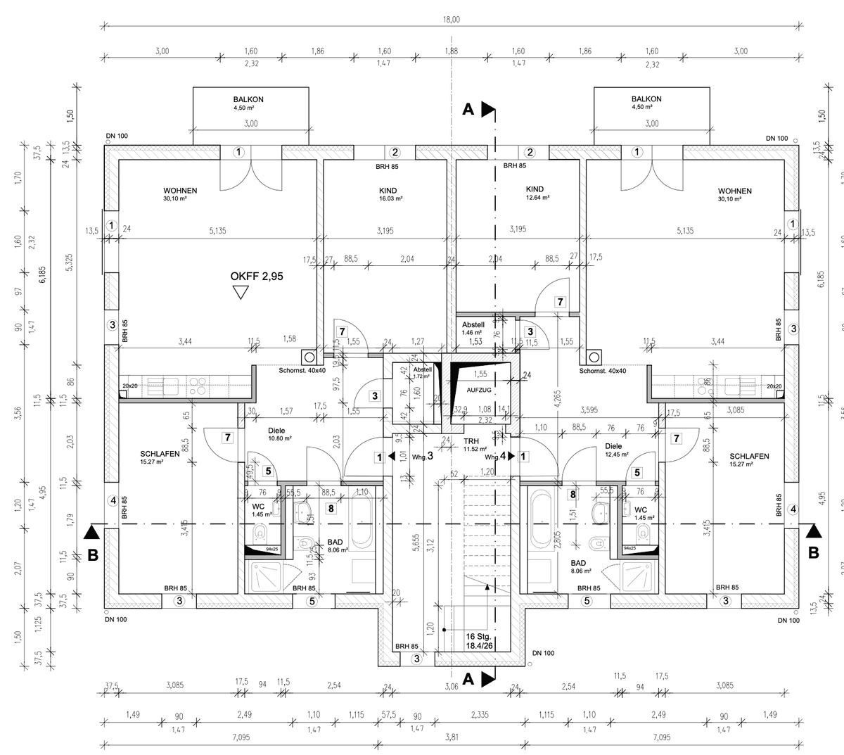
Entwurf & Wohnungsbaukonzept
Das 8-Familienhaus basiert auf einer klar strukturierten Grundrisslogik. Die Wohneinheiten sind effizient organisiert und über eine zentrale Erschließung angebunden. Gut proportionierte Räume, klare Zonierungen und eine gleichmäßige Tageslichtversorgung prägen die Wohnqualität. Gemeinschaftliche Bereiche sind funktional gestaltet und unterstützen eine langfristige, wartungsarme Nutzung.



Wohnküche
Alltagstauglichkeit & Klarheit
Wohnküche

Bad
Robustheit & Präzision
Bad
Wohnungsbau,derdurchKlarheit,WirtschaftlichkeitundAlltagstauglichkeitüberzeugt.
Struktur
Eine klare Organisation ermöglicht effiziente Erschließung und gut nutzbare Wohnungsgrundrisse.
Licht
Großzügige Fensterflächen sorgen für helle, ausgewogene Wohnräume.
Material
Robuste, zurückhaltende Materialien unterstützen eine langfristige Nutzung.
Wohnen
Die Wohnungen bieten Qualität im Alltag und Flexibilität für unterschiedliche Haushaltsgrößen.
Einbindung
Der Baukörper fügt sich selbstverständlich in das bestehende Wohnumfeld ein.
DieWohnungensindklarstrukturiertundbieteneinehoheAlltagstauglichkeit.
Planen Sie ein Wohnungsbauprojekt?
Wir entwickeln wirtschaftliche und architektonisch klare Konzepte für Mehrfamilienhäuser – vom Entwurf bis zur Umsetzung.