Altbauwohnung Köpenick
Sanierung und Umbau einer Altbauwohnung mit dem Ziel, bestehende Qualitäten zu erhalten und zeitgemäß weiterzuentwickeln. Klare Raumfolgen, gezielte Eingriffe und eine zurückhaltende Materialwahl schaffen eine ruhige, wohnliche Atmosphäre mit zeitloser Qualität.

Sanierung & Umbaukonzept
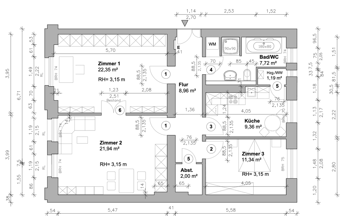
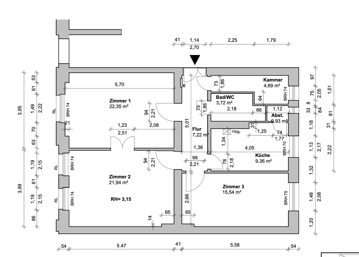
Der Umbau der Altbauwohnung basiert auf einer behutsamen Neuorganisation des Grundrisses. Bestehende Strukturen wurden analysiert, freigelegt und durch präzise Eingriffe ergänzt. Ziel war es, die Großzügigkeit des Altbaus zu bewahren und gleichzeitig klare, funktionale Räume für heutige Wohnansprüche zu schaffen.



Küche
Funktion & Reduktion
Küche

Bad
Klarheit & Ruhe
Bad

Kamin
Atmosphäre & Materialität
Kamin
EinAltbau,derbehutsamweitergedachtwurde–reduziert,klarundzeitgemäß.
Bestand
Vorhandene Strukturen wurden respektiert und gezielt weiterentwickelt.
Raum
Neu geordnete Raumfolgen schaffen Großzügigkeit und Orientierung.
Licht
Bestehende Öffnungen wurden genutzt, um helle, ausgewogene Räume zu erzeugen.
Material
Zurückhaltende Materialien unterstützen die ruhige Wirkung des Altbaus.
Alltag
Klare Funktionen und präzise Details machen die Wohnung alltagstauglich.
DieWohnungfühltsichvertrautan–undgleichzeitigneu.
Planen Sie die Sanierung einer Wohnung?
Wir entwickeln präzise Umbaukonzepte für Bestandswohnungen – vom ersten Entwurf bis zur Umsetzung.